| Místo: | Smíchov, Praha |
| Klient: | Sekyra Group |
| Architekt: | D3A |
| Autor: | Tomáš Prouza |
| Spolupráce: | Jan Pech, Petra Barotková |
| Projekt: | 2016-2020 |
| Realizace: | 2021-2023 |
| Vizualizace: | VR SPACE |
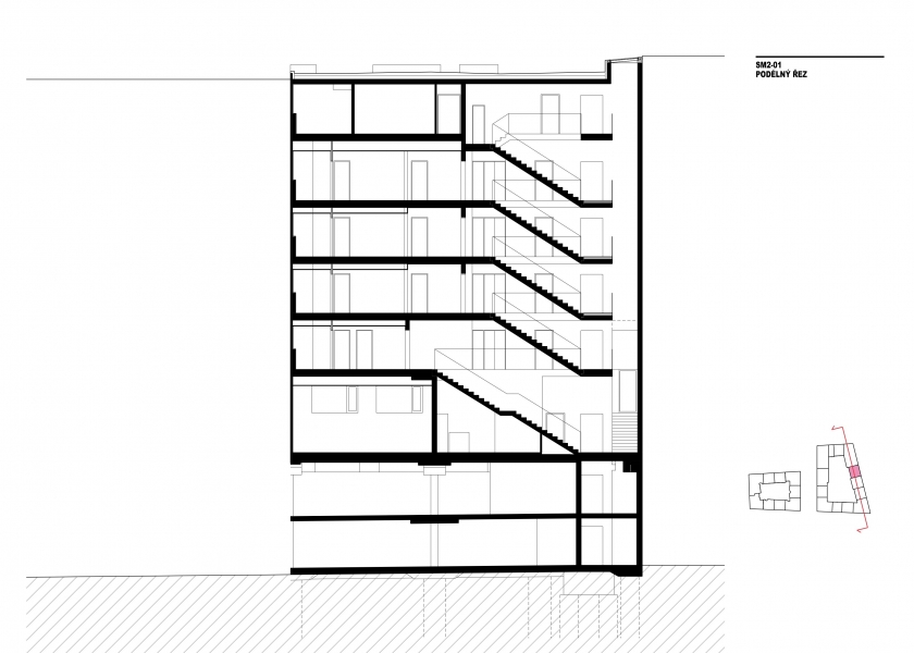
V domě se kloubí tradice a soudobost. Vedle velkých výkladců obchodu je malé skryté loubí se vstupem do domu. Bytová podlaží mají klasickou cihelnou fasádu, ale její spáry jsou nahrubo zatřené maltou, čímž vzniká zvláštní dojem ležérnosti, podtržené perforováním zdiva, které místně zakrývá části oken. S fasádou kontrastují soudobé detaily pláště – velká okna s bezrámovým zasklením a skleněným nárožím u lodžií. Schodiště je uprostřed dispozice domu, osvětlené shora padajícím světlem. Dvorní fasáda naplno využívá orientace do zahrady, do které se otevírá velkými balkony s netypickými zábradlími z průsvitného laminátu.